登录注册

北京中医药大学附属护国寺中医医院 北京中医药大学附属护国寺中医医院

您所在的位置: 首页 >>医院动态 >>采购公告

采购公告

护国寺中医医院1号楼消防防火分区隐患整改项目施工单位比选

发布时间:2025-09-12 浏览次数:
字号: + -

为了更好的满足我院业务工作需要,计划对本部1号楼消防防火分区隐患进行整改。特邀请具有合法资格的单位,实施我院1号楼消防防火分区隐患整改项目的施工工作。

一.基本情况 

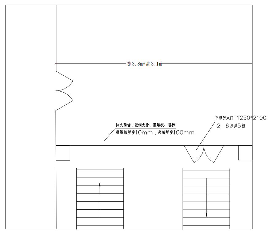
1.项目名称:护国寺中医医院1号楼消防防火分区隐患整改项目(HGS_202518)

2.工程施工预算:施工预算120277.54元。

3.工作内容为:组织实施我院1号楼消防隐患整改项目,对我院1号楼2-6层楼梯处进行防火分隔工作。工作内容详见工程量清单。

4. 工期:40天。

二.总体要求

1.工程方式:包工包料,所用材料及施工规范符合国家相关标准。

2.质量标准:工程验收合格。

3.资质要求:投标人应遵守中国有关的法律、法规,具有企业法人营业执照,投标人须具备建设主管部门颁发的建筑工程施工总承包或建筑装修装饰工程专业承包三级及以上资质。

4.现场踏勘:采购人不组织统一项目踏勘,参选人可自行前往踏勘。

三.招标方式:院内比选。

建设工程评审,采用综合评分法,总分值为100分,评分标准见附件。

附件:评分标准

评审项目

分值

评审标准

响应报价30价格分统一采用低价优先法计算,即满足比选要求且最后报价最低的供应商的价格为响应基准价,其价格分为满分。
其他供应商的价格分统一按照下列公式计算:
响应报价得分=(响应基准价/最后响应报价)×价格权值×100
商务部分12类似工程项目业绩,每提供一个类似项目业绩得3分,最高得12分,不提供不得分。注:需提供合同首页、金额页、签字盖章页、项目内容页等并加盖参选人公章。
施工组织设计施工方案与技术措施14方案科学、合理、可行,针对性强;重点、难点分析全面;技术措施(包括季节性施工)可靠、有保障,能够满足施工需要,得14分;
方案合理、可行,针对性较强;重点、难点分析较全面;技术措施(包括季节性施工)较可靠,能够满足施工需要,得11分;
方案合理、可行,针对性一般;重点、难点分析较全面;技术措施(包括季节性施工)基本可靠,但细节待完善,得8分;
方案较合理,针对性一般,重点、难点分析不全面,技术措施基本可靠,基本能满足施工需要,得4分;
方案不合理,无针对性,技术措施不到位,不能满足施工需要,得0分
安全防护和文明施工保障6科学、可行、针对性强得6分;
合理、可行、细节待完善得3分;
欠合理,可行性较差,基本满足工程需要得1分;
不能满足安全文明施工保障的,得0分
施工进度计划及工期保障措施12施工进度计划科学、合理,切实满足本项目的工期要求,工期保障措施可靠、合理、可行,针对性强,得12分;施工进度计划科学、合理,能满足本项目的工期要求,工期保障措施可靠、合理、可行,针对性较强,得8分;施工进度计划较合理,基本满足本项目的工期要求,工期保障措施基本可靠、可行,但细节待完善,得4分;施工进度计划基本合理,工期保障措施一般,得2分;
施工进度计划不合理,工期保障措施不可行,得0分.
劳动力与施工机械设备投入计划及保障措施10劳动力与施工机械设备投入计划科学合理,施工队伍的配置和拟投入的施工机械设备数量能够切实满足本工程施工需要,资源保障措施可靠、针对性强,得10分;
劳动力与施工机械设备投入计划合理,施工队伍的配置和拟投入的施工机械设备数量能够满足本工程施工需要,资源保障措施较可靠、针对性较强,得6分;
劳动力与施工机械设备投入计划基本合理,施工队伍的配置和拟投入的施工机械设备数量基本满足本工程施工需要,资源保障措施较可靠、针对性一般,得3分;
拟投入的劳动力和施工机械设备不能够满足本工程施工需要,得0分;
质量目标和质量保证措施6方案合理,措施到位,有针对性,能够满足施工需要,得6分;
方案合理,措施到位,针对性一般,能够满足施工需要,得4分;
方案较合理,措施较到位,针对性一般,能满足施工需要,得2分;方案较合理,措施较到位,没有针对性,能满足施工需要,得1分;
方案不合理,措施不到位,不能满足施工需要,得0分

项目组织机构及人员配备10项目组织机构健全,人员配备合理,服务人员稳定,技术支持体系完善,专业分工明确,从业经验丰富,满足项目实际需求,完善合理得10-7分;
较为完善合理,满足实际需求,得6-4分;
基本合理,基本满足实际需求得3-1分;
不合理,不能满足实际需求,得0分。

四.投标人需知

1.我院评定小组在对项目评定时,只对各参选人所投项目的文件进行比较,对确定为实质上响应比选文件要求的投标文件进行评审。本项目评审采用综合评分法。

2. 报价人在递交报价文件后,可以进行二次报价,报价人必须提交修改报价的书面通知,否则报价无效。

3. 我院评定小组发现参选人的报价明显低于其他报价或在设有预算时明显低于预算,使得其报价可能低于其成本的,将要求该参选人作出书面说明并提供相关证明材料。参选人如不能合理说明或不能提供相关证明材料的,由我院评定小组认定该参选人以低于成本报价,其报价将按无效处理。

4.评定结束后,对未成交人不做任何解释,且不承担为此次竞价所产生的任何费用。

五.有意参加本次比选的参选人须准备文件一式四份(一正三副),内容包括:投标价格、售后服务承诺、法人授权书、总体要求中对参选人资质的要求及参选人认为有必要的相关材料(所有文件须加盖公章),按顺序装册封装,并于封袋外标明项目名称、参选人全称、联系人、联系电话,加盖公章,请于2025年9月19日中午12:00前报名并将响应文件密封送到招标办公室(北京市西城区棉花胡同83号)。

联系人:殷老师  联系电话:56895846

六、 具体洽谈时间另行通知。

北京中医药大学附属护国寺中医医院

2025.9.12

附件:工程量清单.xlsx

微信图片_20250912162110_21_183.png